【Buangkok】 Sengkang Grand Residences (D19)
FeaturedProject Details

SENGKANG GRAND RESIDENCES
盛港嘉园(D19 盛港)
【North East Condo】
Pricing From:
3 & 4 BEDROOM AVAILABLE
(1+S, 2, 2+S SOLD OUT)
| 1 + Study | 1 Bath |
| 474 Sqft | $1,915 psf |
99 Yrs Leasehold 1410 Units TOP Mar 2023 Height 18 Storey 1 + Study 2 Bed 2 + Study 3 Bed 3 + Study 4 + Study

Integrated Developments are RARER than Landed Properties !
Direct Access to Buangkok MRT, Bus Interchange, Commercial/Retail Shops at Ground level and Residential at the top !
Nan Chiau Primary School (Top 13 Primary School in SG) is within 1km radius for most blocks !
ONLY 680 Exclusive units where every block will be sufficiently ventilated !
Buy TIME with MONEY Today ! Astounding Conveniences !
PROJECT DETAILS
| LAYOUT(S) |
Size |
PSF |
Price |
|---|---|---|---|
|
1 + Study
|
474 | SOLD | SOLD OUT |
|
2 Bed
|
678 | SOLD | SOLD OUT |
|
2 + Study
|
624 | SOLD | SOLD OUT |
|
2 + Study (P)
|
764 | SOLD | SOLD OUT |
|
3 Bed
|
936 | SOLD | SOLD OUT |
|
3 Bed (P)
|
1023 | $1,809 | $1,850,450 |
|
3 + Flexi (P)
|
1012 | SOLD | SOLD OUT |
|
4 + Flexi (P)
|
1324 | $1,821 | $2,533,000 |
|
Units Sold
|
|||
(P) = Premium
*All Pricing Are Subjected to Developer Changes & Availability. Contact Us Now.
| Project Name | Sengkang Grand Residences |
|---|---|
|
|
|
Tenure: |
99 Yrs |
TOP: |
May 2024 |
Location: |
72 Compassvale Bow Singapore 544693 |
Number of Units: |
680 Units |
Building Height: |
10 Storey |
|
No of Facilities: |
41 |
|
Layout Types |
Sqft |
Units |
| 1 Bedroom + Study | 474 - 506 | 131 |
| 2 Bedroom | 624 - 678 | 95 |
| 2 Bedroom + Study | 624 | 10 |
| 2 Bedroom + Study (P) | 732 - 754 | 136 |
| 3 Bedroom | 936 - 947 | 148 |
| 3 Bedroom (P) | 1023 - 1055 | 56 |
| 3 Bedroom + Flexi (P) | 1012 |
55 |
| 4 Bedroom + Flexi (P) | 1313 - 1324 | 49 |
(P) = Premium
LOCATION DETAILS

Why Buyers buy here?
AMENITIES
MRT | School | Supermarket | Mall
BUANGKOK MRT (At Basement Level)
East West Line (EWL)
North South Line (NSL)
North East Line (NEL)
Circle Line (CCL)
Downtown Line (DTL)
Thomson-East Coast Line (TEL)
Jurong Region Line (JRL)
Cross Island Line (CRL)
- 1. PALM VIEW PRIMARY SCHOOL
(184M AWAY) - 2. NORTH VISTA PRIMARY SCHOOL
(371M AWAY) - 3. PUNGGOL PRIMARY SCHOOL
(543M AWAY) - 4. NAN CHIAU PRIMARY SCHOOL
(925M AWAY) - 5. YIO CHU KANG PRIMARY SCHOOL
(937M AWAY) - 6. MONFORT JUNIOR SCHOOL
(950M AWAY)
- 1. ANCHOR GREEN PRIMARY SCHOOL
(1.05KM AWAY) - 2. CHIJ OUR LADY OF THE NATIVITY
(1.16KM AWAY) - 3. SENGKANG PRIMARY SCHOOL
(1.17KM AWAY) - 4. HOUGANG PRIMARY SCHOOL
(1.3KM AWAY) - 5. NORTH SPRING PRIMARY SCHOOL
(1.4KM AWAY) - 6. SPRINGDALE PRIMARY SCHOOL
(1.42KM AWAY) - 7. COMPASSVALE PRIMARY SCHOOL
(1.48KM AWAY) - 8. XINMIN PRIMARY SCHOOL
(1.56KM AWAY) - 9. HOLY INNOCENTS' PRIMARY SCHOOL
(1.7KM AWAY)
- SUPERMARKET
(Direct Access at Level 1) - NTUC SUPERMARKET
(260M AWAY) - GIANT SUPERMARKET
(590M AWAY) - GIANT SUPERMARKET
(600M AWAY)
SITE PLAN

FLOOR PLAN
Type: A1S(p)
| Price: | $ | SOLD | SOLD |
| 1063000 | 0.25 | ||
| 1063000 | 0.75 | ||
| 25% *D.P: | $ | - | |
| 75% Loan: | $ | - | - |
| Tenure: | 30 | ||
| Interest: | 1% | ||
| Monthly: | $ | - | |
| 797250 | 0.01 | ||
| 7972.5 | 30 | ||
| 239175 | 797250 | ||
| 1036425 | 0.00360 | ||
| 3731.13 | 0.6873 |
you have to Re-Tabulize 3 times for Calculation to be fully correct !!
*All Pricing Are Subjected to Developer Changes & Availability. Contact Us Now.
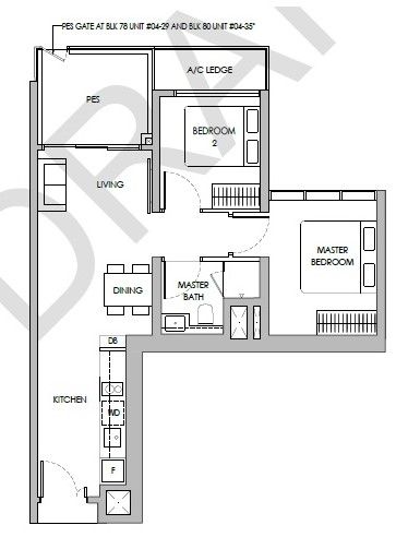
A1S-P 474 Sqft
A2S-P 495 Sqft
A4S-P 508 Sqft

Type: B1(p)
| Price: | $ | SOLD | SOLD |
| 1063000 | 0.25 | ||
| 1063000 | 0.75 | ||
| 25% *D.P: | $ | - | |
| 75% Loan: | $ | - | - |
| Tenure: | 30 | ||
| Interest: | 1% | ||
| Monthly: | $ | - | |
| 797250 | 0.01 | ||
| 7972.5 | 30 | ||
| 239175 | 797250 | ||
| 1036425 | 0.00360 | ||
| 3731.13 | 0.6873 |
you have to Re-Tabulize 3 times for Calculation to be fully correct !!
*All Pricing Are Subjected to Developer Changes & Availability. Contact Us Now.
B2-P 678 Sqft

B3 624 Sqft
Type: B4S
| Price: | $ | SOLD | SOLD |
| 1063000 | 0.25 | ||
| 1063000 | 0.75 | ||
| 25% *D.P: | $ | - | |
| 75% Loan: | $ | - | - |
| Tenure: | 30 | ||
| Interest: | 1% | ||
| Monthly: | $ | - | |
| 797250 | 0.01 | ||
| 7972.5 | 30 | ||
| 239175 | 797250 | ||
| 1036425 | 0.00360 | ||
| 3731.13 | 0.6873 |
you have to Re-Tabulize 3 times for Calculation to be fully correct !!
*All Pricing Are Subjected to Developer Changes & Availability. Contact Us Now.
B4S-P 624 Sqft
Type: B5PS
| Price: | $ | SOLD | SOLD |
| 1444080 | 0.25 | ||
| 1444080 | 0.75 | ||
| 25% *D.P: | $ | - | |
| 75% Loan: | $ | - | - |
| Tenure: | 30 | ||
| Interest: | 1% | ||
| Monthly: | $ | - | |
| 1083060 | 0.01 | ||
| 10830.6 | 30 | ||
| 324918 | 1083060 | ||
| 1407978 | 0.00360 | ||
| 5068.7208 | 0.6873 |
you have to Re-Tabulize 3 times for Calculation to be fully correct !!
*All Pricing Are Subjected to Developer Changes & Availability. Contact Us Now.
B5P5-P 764 Sqft
Type: C2(p)
| Price: | $ | SOLD | SOLD |
| 1683850 | 0.25 | ||
| 1683850 | 0.75 | ||
| 25% *D.P: | $ | - | |
| 75% Loan: | $ | - | - |
| Tenure: | 30 | ||
| Interest: | 1% | ||
| Monthly: | $ | - | |
| 1262887.5 | 0.01 | ||
| 12628.875 | 30 | ||
| 378866.25 | 1262887.5 | ||
| 1641753.75 | 0.00360 | ||
| 5910.3135 | 0.6873 |
you have to Re-Tabulize 3 times for Calculation to be fully correct !!
*All Pricing Are Subjected to Developer Changes & Availability. Contact Us Now.
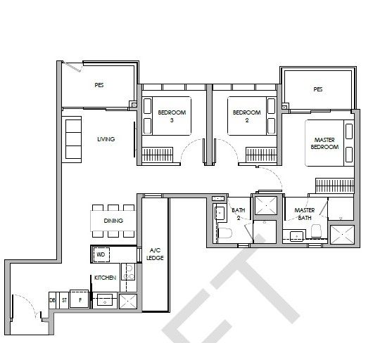
C1-P 936 Sqft

C2-P 936 Sqft

C1a-P 936 Sqft

C2a 947 Sqft

Type: C3P(p)
| Price: | $ | 1850450 | 1,850,450 |
| 1850450 | 0.25 | ||
| 1850450 | 0.75 | ||
| 25% *D.P: | $ | 462,613 | |
| 75% Loan: | $ | 1387837.5 | 1,387,838 |
| Tenure: | 30 | ||
| Interest: | 1% | ||
| Monthly: | $ | 4,464 | |
| 1387837.5 | 0.01 | ||
| 13878.375 | 30 | ||
| 416351.25 | 1387837.5 | ||
| 1804188.75 | 0.00360 | ||
| 6495.0795 | 0.6873 |
you have to Re-Tabulize 3 times for Calculation to be fully correct !!
*All Pricing Are Subjected to Developer Changes & Availability. Contact Us Now.
C3P-P 1023 Sqft

C3Pa-P 1033 Sqft

C4P 1055 Sqft

Type: C5PF(p)
| Price: | $ | SOLD | SOLD |
| 1843650 | 0.25 | ||
| 1843650 | 0.75 | ||
| 25% *D.P: | $ | - | |
| 75% Loan: | $ | - | - |
| Tenure: | 30 | ||
| Interest: | 1% | ||
| Monthly: | $ | - | |
| 1382737.5 | 0.01 | ||
| 13827.375 | 30 | ||
| 414821.25 | 1382737.5 | ||
| 1797558.75 | 0.00360 | ||
| 6471.2115 | 0.6873 |
you have to Re-Tabulize 3 times for Calculation to be fully correct !!
*All Pricing Are Subjected to Developer Changes & Availability. Contact Us Now.
C5PF-P 1012 Sqft

Type: D1PF-P
| Price: | $ | 2533000 | 2,533,000 |
| 2533000 | 0.25 | ||
| 2533000 | 0.75 | ||
| 25% *D.P: | $ | 633,250 | |
| 75% Loan: | $ | 1899750 | 1,899,750 |
| Tenure: | 30 | ||
| Interest: | 1% | ||
| Monthly: | $ | 6,111 | |
| 1899750 | 0.01 | ||
| 18997.5 | 30 | ||
| 569925 | 1899750 | ||
| 2469675 | 0.00360 | ||
| 8890.83 | 0.6873 |
you have to Re-Tabulize 3 times for Calculation to be fully correct !!
*All Pricing Are Subjected to Developer Changes & Availability. Contact Us Now.
D1PF-P 1324 Sqft

D2PF 1313 Sqft

DIRECT DEVELOPER PRICE
100% Best Price Guarantee ! Early Bird Price ! Exclusive VVIP Preview !
FAST RESPONSE TIME
Immediate Viewing of All Multiples Showflat for Comparison
Free Cash-Flow & Timeline Planning
Lifetime After-sales Services Provided
BEST BUYERS' EXPERIENCE
Have A Ease of Mind Seamless Transition to Your Next New Home
Proven in-House Asset Capital Growth Strategists for Your Current to Future Property's Stages Direction
Call Us At +65-61007118
For Latest Pricing, Brochure & Viewing Arrangement.










































